🏠 Sophisticated 1-Bedroom Apartment at Aqualina
Discover the perfect blend of modern elegance and Mediterranean tranquility in the prestigious Aqualina complex, located in the lush, green region of Karsiyaka, Northern Cyprus. This contemporary 1-bedroom (1+1) apartment is masterfully designed to provide a high-quality living experience, combining functional efficiency with a sense of open space. Nestled in a location famous for its mountain-to-sea scenery, this property offers a premier opportunity for those seeking a stylish home or a high-performing investment asset.
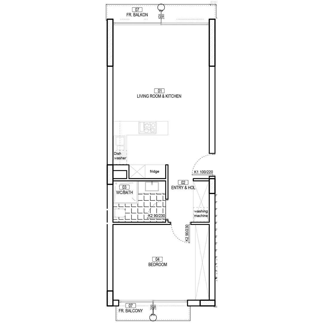
📐 Thoughtful Layout & Design Advantages
The apartment features a linear, well-zoned floor plan that ensures a comfortable flow between private and social spaces:
-
Living & Culinary Zone: A spacious open-plan area integrates the living room and a modern kitchen niche, creating a bright and airy social heart for the home.
-
The Private Sanctuary: An isolated, generous bedroom provides a quiet retreat, separated from the living area by the entrance and bathroom block for maximum acoustic privacy.
-
Smart Utility: The entrance hall is designed with a dedicated niche for a washing machine and storage, keeping the main living areas clean and clutter-free.
-
Natural Light: The unit features two French balconies—one off the living area and one off the bedroom—ensuring the apartment is flooded with natural light and fresh coastal breezes throughout the day.
-
Modern Amenities: A central, fully equipped bathroom (WC/Bath) is conveniently accessible from both the living zone and the bedroom.
🎯 An Ideal Choice for Every Buyer
-
For Tourists: Karsiyaka is a hidden gem for travelers seeking authentic beauty. The apartment’s “lock-up-and-go” convenience and proximity to the sea and local beach clubs make it a highly desirable holiday rental.
-
For Investors: Aqualina is a high-spec development in a region seeing significant appreciation. With a strong demand for short-term rentals and a steady rise in land value, this 1-bedroom unit offers high liquidity and excellent ROI potential.
-
For Couples & Digital Nomads: The quiet, isolated bedroom and dedicated workspace potential in the living area provide a perfect environment for those who work remotely while enjoying the island’s high quality of life.
📍 Location & Surrounding Infrastructure
Aqualina residents benefit from a lifestyle of convenience and natural beauty:
-
Local Vibes: Just a short walk to the Karsiyaka coastline, local traditional taverns, and charming seaside cafes.
-
Convenience: The area is well-serviced by supermarkets and essential pharmacies, ensuring daily needs are met without a long commute.
-
Nature & Leisure: Enjoy the nearby walking trails along the mountain foothills or spend the day at the various sandy beaches and turtle nesting sites that define this region.
-
Connectivity: A scenic 20-minute drive along the coast brings you to the historic harbor city of Kyrenia (Girne).















