WPCS 2.2.0.5
"Heaven's Hill Village"

3 BR bungalow "Heaven's Hill Village"

Facility Characteristics

Ask a question about the object

Developer: Bastaslar Construction

Real estate market: Primary

Property Type: Bungalow

Handover: 2025

Rooms: 3 BR bungalow

Living area: 188 m²

Terrace: 52

Swimming pool: 50

Garage area: 17

Roof terrace: 105

Location

Places nearby
Airport
40 min
Supermarket
10 min
Pharmacy
9 min
School
10 min
Kindergarten
11 min
Hospital
10 min

Payment plan

Cost from $708 684
Terms and payment plans change regularly, our specialist will provide up-to-date information.
Initial payment
35%
Until March 2025 - interest-free installment plan
65%
Calculate the payment

Additional features

🏠 Luxury 3-Bedroom Bungalow with Private Pool at Heaven’s Hill Village

Step into a world of exclusive Mediterranean luxury with this expansive 3-bedroom bungalow in the prestigious Heaven’s Hill Village. Located in the elite Esentepe region of Northern Cyprus, this property is the pinnacle of coastal living. Designed for those who seek maximum privacy and grand entertaining spaces, the bungalow combines a massive single-level living area with a spectacular private roof oasis, all set against the backdrop of the sea and mountains.

📐 Grand Scale Layout & Outdoor Features

This bungalow is expertly designed to merge high-end interior comfort with the iconic outdoor lifestyle of Cyprus.

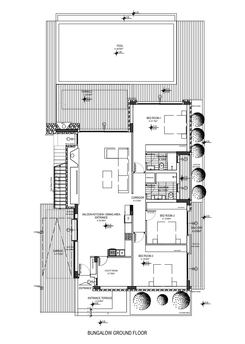
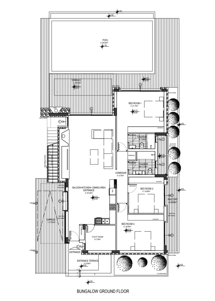
  • Main Living Level (Ground Floor):

    • A massive 53.40 sqm Open-Plan Saloon, Kitchen, and Dining Area, serving as a bright and social heart of the home.

    • Master Suite (Bedroom-1): A sprawling 21.10 sqm retreat with its own private bathroom.

    • Additional Bedrooms: Two further generous bedrooms (12.60 sqm and 18.00 sqm), each featuring built-in wardrobe spaces.

    • Utility & Convenience: Includes a 7.20 sqm utility room, a guest toilet, and an additional family bathroom.

  • Premium Outdoor Amenities:

    • A Private Pool (50 sqm) surrounded by a spacious sun terrace and BBQ area.

    • A dedicated Garage (17.00 sqm) and beautifully landscaped flower beds.

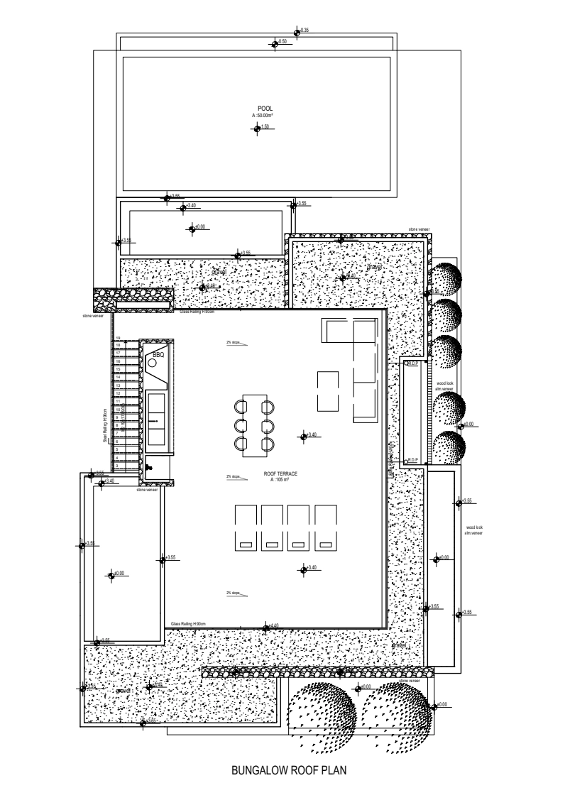
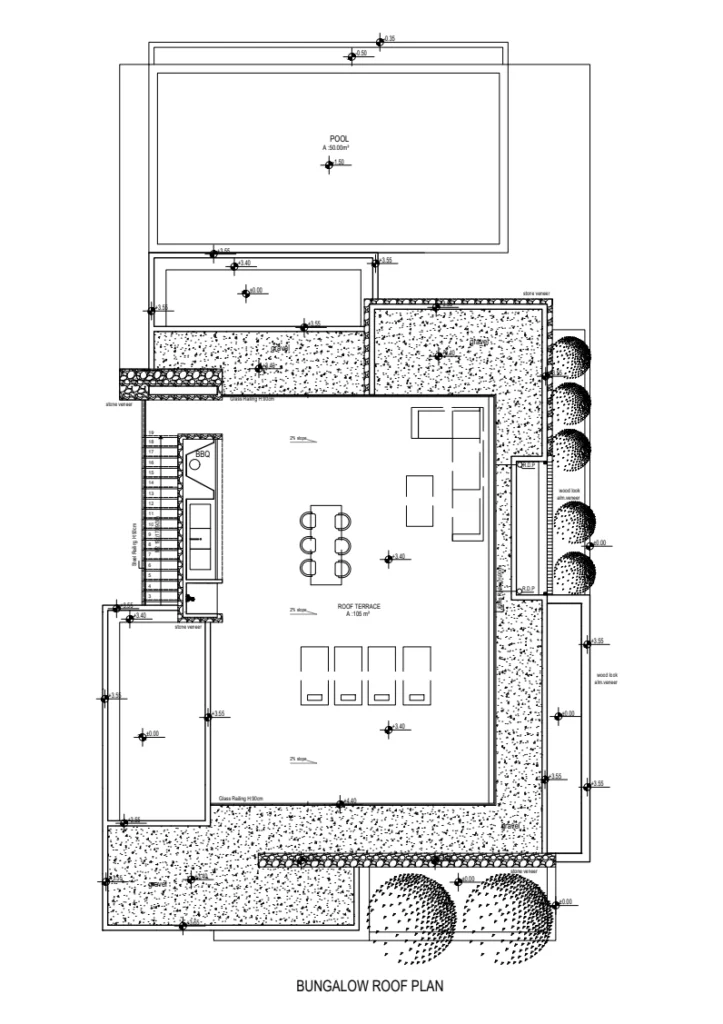
  • The Roof Oasis:

    • A monumental 105 sqm Private Roof Terrace, featuring a second BBQ area and ample space for a full outdoor lounge and dining set, offering 360-degree panoramic views.

🎯 Who Is This Bungalow For?

  • Families Seeking Privacy: The single-story layout is ideal for families with children or multi-generational living, providing easy accessibility. The private garden and pool offer a secure, secluded environment, while Esentepe’s quiet atmosphere is perfect for those prioritizing peace and safety.

  • Luxury Vacationers: This is the ultimate holiday retreat. With a private 50 sqm pool and a 105 sqm roof terrace, guests can enjoy a resort-like experience without ever leaving home. Its proximity to the sea and local gourmet restaurants makes it a top-tier choice for high-end travelers.

  • Serious Investors: High-spec bungalows with private pools in Esentepe are among the most lucrative assets in Northern Cyprus. The rare combination of large internal square footage and massive outdoor space ensures premium rental yields and long-term capital growth in a booming market.

📍 Neighborhood & Infrastructure

Esentepe is the “hidden gem” of Northern Cyprus, famous for its emerald greenery and the world-class Korineum Golf & Beach Resort. Residents at Heaven’s Hill Village enjoy a sophisticated lifestyle with easy access to high-end beach clubs, organic markets, and scenic hiking trails. The infrastructure is modern and well-maintained, ensuring that while you enjoy a tranquil escape, the vibrant city life of Kyrenia is only a 20-minute drive away.

Object Catalogue
Receive on WhatsApp
Antony
Property expert

    Text us on messengers:
    Ask a question
    Select real estate
    Get the current catalog
    Our contacts
    Cypria Homes
    Karsıyaka Sokak 8, Girne
    Didn't find what you were looking for?
    Answer 4 questions - get a personalised selection of objects for you
    Start selection
    Didn't find what you were looking for?
    Get a ready-made catalogue of the top properties in WhatsApp or a customised selection according to your criteria