🏠 Majestic 4-Bedroom Villa at Heaven’s Hill Village
Step into the pinnacle of Mediterranean luxury with this expansive 4-bedroom villa in the elite Heaven’s Hill Village project. Nestled in the breathtaking hills of Esentepe, Northern Cyprus, this two-story residence is designed for those who demand space, elegance, and privacy. Offering a rare combination of a private pool, a dedicated garage, and multiple terraces, this villa is a true sanctuary where the mountains meet the sea.
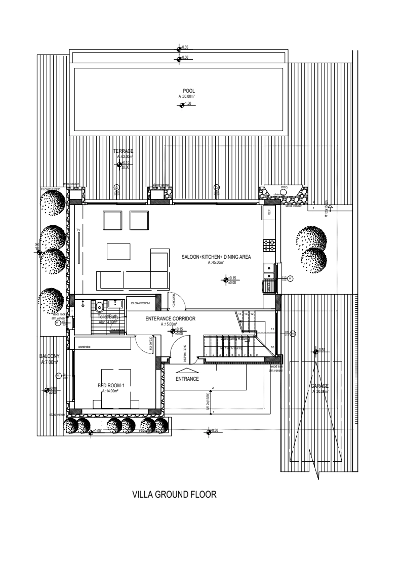
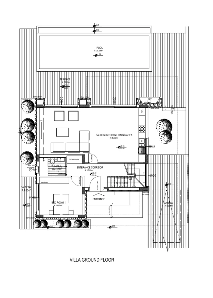
📐 Masterful Two-Level Layout
The villa is architecturally crafted to balance grand social spaces with quiet, isolated retreats for every family member.
-
Ground Floor (The Social Hub):
-
A vast 45.00 sqm Saloon, Kitchen, and Dining Area featuring large glass doors that open to the garden.
- Bedroom-1 (14.00 sqm) – a perfect guest room or office with its own 7.00 sqm balcony.
-
A functional Entrance Corridor (15.00 sqm) with a dedicated Cloakroom and a guest bathroom (4.00 sqm).
-
Outdoor luxury: A massive 62.00 sqm Main Terrace leading to your Private Pool (30.00 sqm) and BBQ zone.
-
Includes a private Garage (30.00 sqm) for secure parking.
-
-
First Floor (The Private Zone):
- Three additional bedrooms: Bedroom-2 (12.50 sqm), Bedroom-3 (18.00 sqm), and the grand Bedroom-4 (20.00 sqm).
-
Three Bathrooms: Two private en-suites and one shared family bathroom (4.50 sqm).
-
An 8.00 sqm corridor with a dedicated boiler/laundry nook and a private 13.30 sqm Upper Terrace for evening relaxation.
🎯 Who Is This Villa For?
-
Large Families: This villa is built for long-term residency. With four separate bedrooms and four bathrooms, every family member enjoys their own privacy. The quiet, secure environment of Esentepe is ideal for children, while the private pool and garden provide endless entertainment at home.
-
High-End Vacationers: For those seeking a 5-star holiday experience, the massive 62 sqm terrace and private pool offer total seclusion. Its location near the coast and the prestigious Korineum Golf Resort makes it a magnet for premium tourists.
-
Savvy Investors: Large 4-bedroom villas are among the most sought-after and limited property types in the Esentepe region. This unit promises high liquidity, strong capital appreciation, and significant rental demand from wealthy expats and holidaymakers.
📍 Neighborhood & Premium Lifestyle
Esentepe is famous for its lush greenery and panoramic views. Heaven’s Hill Village puts you at the heart of it all—just minutes away from world-class golf, fine dining, and hidden beach coves. The local infrastructure includes essential shops, pharmacies, and transport links, ensuring convenience while maintaining a peaceful, village-like atmosphere. Whether you’re dining by the pool or watching the sunset from your upper terrace, this villa offers a lifestyle like no other.















